Aktivitätszone in Grass soll endlich wachsen

Noch werden die Felder an der belgischen Grenze in Grass, direkt vor dem bekannten schwedischen Möbelhaus, beackert.

Doch bis Ende des Jahres soll die Errichtung der sich schon seit Jahren im Gespräch befindenden Aktivitätszone Grass beginnen. Obwohl die ersten Bagger noch nicht angerollt sind, ist das Interesse bei den Unternehmen jetzt schon groß. Etwa 50 Anfragen gab es bereits, betont der Steinforter Bürgermeister und Präsident des Zaro, Jean-Marie Wirth.

Eines lässt Jean-Marie Wirth, Präsident des Zaro („Syndicat intercommunal pour la création, l'aménagement, la promotion et l'exploitation d'une zone d'activités économiques à caractère régional dans la région de l'ouest du pays“) nicht gelten. Man habe die Schaffung der Aktivitätszone nicht vorangetrieben, um die Gemeindekassen der sechs beteiligten Gemeinden (Steinfort, Mamer, Hobscheid, Kehlen, Koerich und Garnich) zu füllen.

„Wir investieren hier 10 Millionen Euro, da wird es mindestens ein Jahrzehnt dauern, bis wir das wieder erwirtschaftet haben. Uns ging es darum, Raum für Arbeitsplätze zu schaffen“, unterstreicht der Bürgermeister. Deshalb ist die Zone für kleine und mittlere Handwerkerbetriebe (bis etwa 50 Mitarbeiter) bestimmt: „In unseren Dörfern gibt es viele Betriebe, die sich dort nicht mehr vergrößern können und neuen Platz brauchen, um sich weiterzuentwickeln“. So haben bereits etwa 50 Unternehmer Interesse angezeigt, dies obwohl die Arbeiten in Grass noch nicht einmal begonnen haben. Eine Mehrheit davon stammt aus der Region, und soll auch Priorität genießen, erklärt Jean-Marie Wirth weiter.

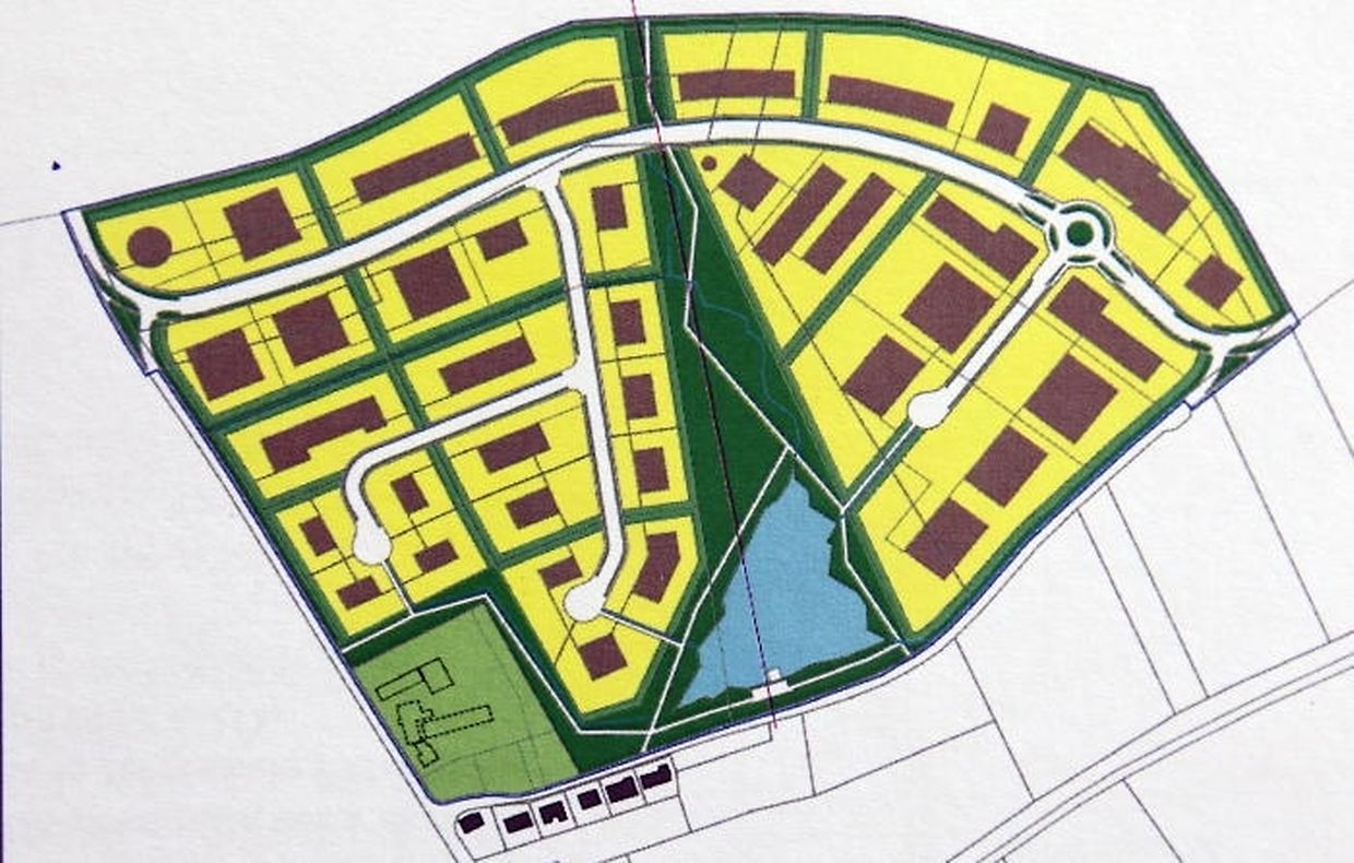
Insgesamt werden sie sich auf einem beachtlichen Areal von 28,1 Hektar niederlassen können (wovon 17 Hektar bebaut werden können). Dass nicht alles verbaut wird, ist auf das Grünkonzept zurückzuführen, welches zurückbehalten wurde. So wird die Aktivitätszone, die in einer Entfernung von nur 100 Meter von der A6-Autobahn (respektive E411) entfernt ist, in der Mitte durch einen grünen Gürtel mit unter anderem einem Teich und Gehwegen geteilt. 670 000 Euro lassen sich die sechs Gemeinden die Grünanlagen kosten (die Kosten und die Einnahmen werden systematisch durch sechs geteilt). Wer beanstandet, dass die Aktivitätszone auf der grünen Wiese entsteht, dem entgegnet der Steinforter Bürgermeister, dass das Areal nach dem Bau eine bessere ökologische Bilanz aufweisen wird als aktuell.

Die Grundstücke werden via „droit de superficie“ an die Unternehmer verpachtet. Dies bedeutet, dass das Gelände im Besitz des Syndikats bleibt, die Gebäude, die darauf errichtet werden, aber den Unternehmen gehören werden. Für 30 Jahre wird sich der Preis auf 15 000 Euro pro Ar belaufen, wozu noch Unterhaltskosten für die Infrastruktur anfallen werden. Preise, die man gegebenenfalls in den kommenden Jahren anpassen wird. In Kürze soll ebenfalls der Teilbebauungsplan (PAP) der Zone auf der Internetseite der Steinforter Gemeinde zu finden sein.

Reine Verkaufsflächen sind in der Aktivitätszone unerwünscht, lediglich können Betriebe ihre Waren, die sie dort produzieren, verkaufen. Dennoch wird sich die Lage für das kleine Dorf stark verändern. Einerseits wird von der Installation der Infrastrukturen profitiert um auch die Wasserkanalisation in der Ortschaft zu erneuern und den Anschluss ans Gasnetz herzustellen. Weiterhin sind zwei Teilbebauungspläne in Ausarbeitung, die neuen Wohnraum schaffen werden (einer davon sieht 50 neue Wohnungen vor). Sodass die bisher überschaubare Bevölkerung des Dorfs sich in den kommenden Jahren vervielfachen dürfte.

Eine Aktivitätszone mit langer Vorgeschichte

Doch der Zaro hat sich nicht nur zum Ziel gesetzt, eine neue Aktivitätszone in Grass zu errichten. Sind die Arbeiten hier erstmals abgeschlossen (laut Jean-Marie Wirth sollen die Bagger noch dieses Jahr anrollen und die ersten Betriebe sich im Sommer 2015 niederlassen können), sollen Aktivitätszonen in den Gemeinden Mamer und Kehlen vergrößert werden. Auch wenn genaue Pläne noch nicht erarbeitet wurden, sollte auch dort Platz für kleinere und mittlere Handwerksbetriebe entstehen. Noch länger als der Name des „Syndicat intercommunal pour la création, l'aménagement, la promotion et l'exploitation d'une zone d'activités économiques à caractère régional dans la région de l'ouest du pays“ ist die Entstehungsgeschichte der Aktivitätszone. Schon vor Jahren wollte die Steinforter Gemeinde diese errichten, doch das Innenministerium verweigerte die Genehmigungen und legte den Lokalpolitikern ans Herz, regional zusammenzuarbeiten. Weshalb der Zaro 2009 entstand.

Dass es dann weitere vier Jahre dauerte, bis dass endlich mit den Arbeiten begonnen wird, liegt nach Jean-Marie Wirth zum großen Teil an den administrativen Hürden, die es zu überwinden galt: „Man muss immer am Ball bleiben, immer nachfragen, damit es auch vorangeht. Das kostet eine Menge Energie“. Jetzt hofft der Bürgermeister nur noch auf einen milden Winter 2013-2014, damit die Arbeiten auch gut voranschreiten können. Und endlich neuer Platz für Handwerksbetriebe im Westen entstehen kann.

VON NICOLAS ANEN (Fotos: Marc Wilwert)