Terrain der Garage Muller vor Neunutzung

Der hauptstädtische Gemeinderat bahnte am 24. Januar den Weg für die Neunutzung der Terrains der ehemaligen Garage Muller für Wohnungen, Büros und Geschäfte. Grünes Licht gab es auch für die Umgestaltung des Cessinger Parks zwischen dem neuen Viertel „Im Brill“ und der Straßenbrücke über dem Cessinger Bach. Paul-Henri Meyers (CSV) nahm nicht mehr an der Sitzung teil.

Wie das „Luxemburger Wort“ berichtet hatte, wird die Juristin Claudine Konsbrück die Nachfolge von Paul-Henri Meyers antreten, der aus Altersgründen zurückgetreten ist. CSV-Fraktionschefin Martine Mergen würdigte die Arbeit von Paul-Henri Meyers, der seit 1982 Mitglied des Gemeinderates und von 1997 bis 2005 Erster Schöffe war. Als Mobilitätsschöffe hatte er u. a. das gebührenpflichtige Parken (mit kostenlosen Anrainervignetten nur noch für das erste Auto) umgesetzt, weil das zwischen 1990 und 1997 etappenweise eingeführte, kostenlose Anrainerparken als Maßnahme gegen das hohe Verkehrsaufkommen nicht mehr genügte. Martine Mergen betonte, dass Paul-Henri Meyers die Schaffung von Schulfoyers vorantrieb, und hob die juristischen Kenntnisse des mit ruhiger Kraft agierenden „raffinierten Fuchses aus dem Ösling“ hervor, der als Abgeordneter weiter politisch aktiv ist. Bürgermeister Paul Helminger bedauerte die Entscheidung von Paul-Henri Meyers, der nicht nur ein „exzellenter Kollege“ und ein loyaler Mensch sei, sondern auch „eine verständige Politik ohne Polemik“ betreibe.

Noch kein konkretes Projekt für Garage-Muller-Terrain

Ein konkretes Projekt für die Terrains der einstigen Garage Muller an der Route d'Esch liegt noch nicht vor, doch die Bebauung wurde durch punktuelle Abänderungen des Flächennutzungsplanes (PAG) vorbereitet. Bis auf ein kleines, als Grünzone einklassiertes Terrain beim „Salzhaff“ am unteren Ende dieses Areals, ist dieses derzeit als „terrains à étude – ensemble à restructurer“ ausgewiesen. Der Gemeinderat gab erstens seine provisorische Zustimmung für die Einklassierung des 39 Ar großen Terrains, auf dem sich die einstige Garage befindet, als „ensemble de terrains à aménager – zone d'habitation et zone mixte“. An der Rue Nicolas van Werveke und an der Rue Antoine Meyer sollen Wohnungen entstehen, an der Route d'Esch Geschäfte und Büros. Zweitens wurde das 73 Ar große Terrain, auf dem sich u. a. der Parkplatz der Garage Muller befand, teils zu einer „zone d'habitation 3“, teils zu einem „ensemble de terrains à aménager – zone d'habitation et zone mixte“ umklassiert.

Laut Ben Fayot (LSAP) wird daran gedacht, dass die Gebäude an der Rue Lavandier drei Etagen hoch sein könnten, an der Rue Antoine Meyer vier und an der Route d'Esch fünf Etagen hoch – es müsse gewährleistet werden, dass die bestehenden Häuser nicht optisch erdrückt werden. Paul Helminger sagte, es werde darauf geachtet, wenn ein konkreter Teilbebauungsplan (PAP) ausgearbeitet werde. Falls dann nicht alle Terrains in einer Hand seien, könne die Stadt wie bei der Place de l'Etoile das PAP selbst beim Innenministerium einreichen. Vronny Krieps (DP) betonte, dass eine hochwertige Architektur erforderlich sei, da die Gebäude vom neuen Stadtboulevard, der im Masterplan Porte de Hollerich vorgesehen ist, weithin sichtbar sein werden. Was diesen Masterplan betrifft, sagte Paul Helminger, dass es noch zwei Probleme gebe: Erstens der Umstand, dass statt des Peripheriebahnhofs zunächst nur eine Haltestelle umgesetzt werden soll, und zweitens die immer noch vorhandene Meinungs-verschiedenheit zwischen der Stadt und der Straßenbauverwaltung über den Zweck einer parallel zur heutigen Autobahn verlaufenden Straße, die nach Ansicht des Schöffenrates nur eine Erschließungsstraße und keine Transitstraße sein sollte.

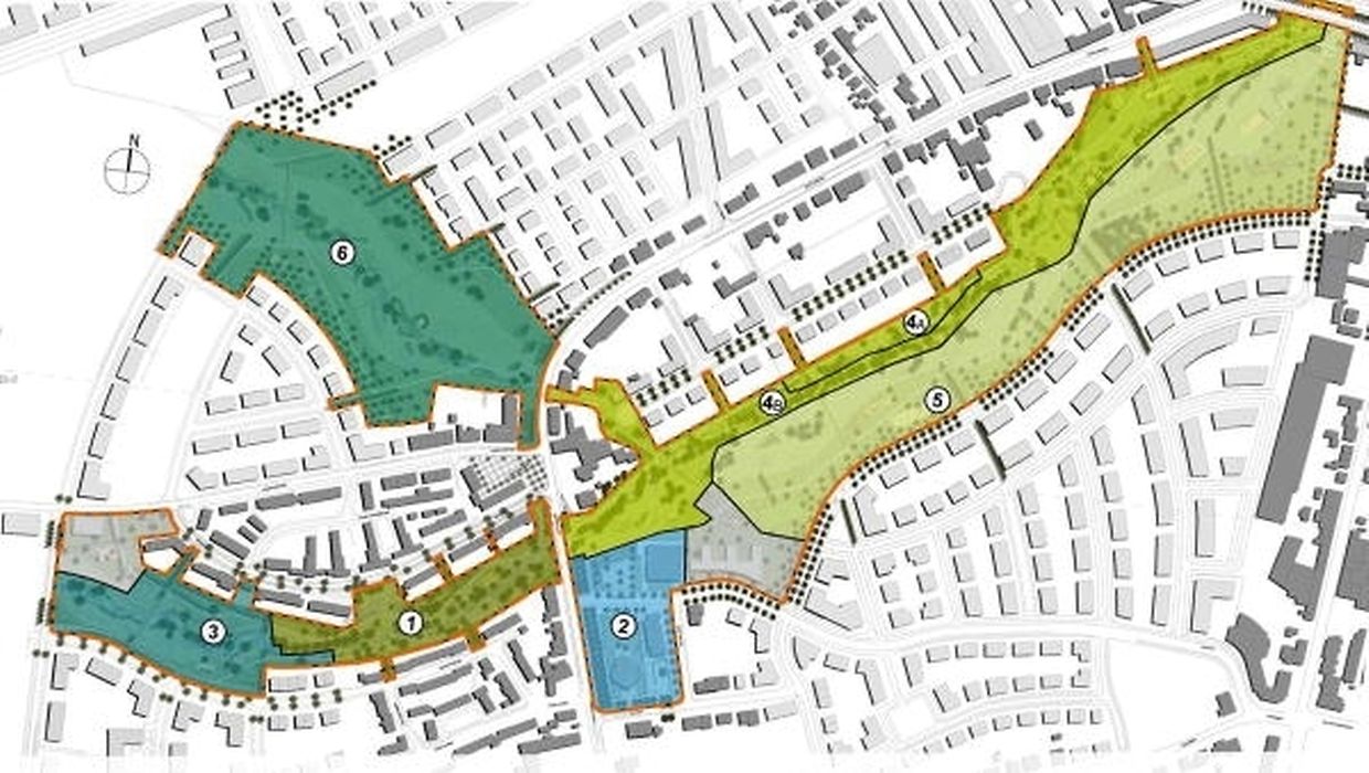
Umgestaltung des Cessinger Parks in Etappen

Für 1,2 Millionen Euro wird der bestehende, 1,6 Hektar große Cessinger Park umgestaltet und der dadurch fließende Cessinger Bach renaturiert. Der neue Erholungsraum wird geschaffen im Hinblick auf größere Bauvorhaben. Jean-Paul Rippinger (unabhängig) sprach gestern von 500 neuen Wohnungen und warf die Frage auf, ob die zukünftigen Bewohner einem Park nicht einfache Grünflächen vorziehen würden. Umweltschöffin Viviane Loschetter erklärte, dass der bestehende Park der kleinste Teil des geplanten „Parc de Cessange“ sei, der 21,5 Hektar groß sein und das Rückgrat für die neuen Bauprojekte darstellen soll. Der teils kanalisierte Bach werde wieder breiter und naturnah gestaltet. An einem Ufer werde ein wasserdurchlässiger Fußweg angelegt, am anderen Ufer ein Rad- und Skaterweg, der von den Notdiensten benutzt werden kann. Die Spielplätze, die an diesen Wegen angelegt werden, sollen laut Viviane Loschetter gut abgesichert sein, damit kein Kind in den nahen Bach stürzt – Vronny Krieps und Isabel Wiseler (CSV) hatten ihre diesbezügliche Sorge geäußert. Die Frage von Isabel Wiseler über den Gesamtkostenpunkt des Parks konnte der Schöffenrat nicht beantworten, da die einzelnen Etappen mit den aufeinanderfolgenden PAPs verwirklicht würden. Marc Angel (LSAP) wies darauf hin, dass die Wasserqualität des Baches wegen der Einleitung von Abwässern und Düngemitteln noch stark zu wünschen übrig lasse.

Tempo 30 in vielen Straßen des Bahnhofsviertels

Genehmigt wurde die Einführung von Tempo 30 in vielen Straßen des Bahnhofsviertels. Am 7. Februar findet eine Informationsversammlung für die Bürger statt. Martine Mergen fragte, ob in der Nähe der Schule Maßnahmen für mehr Verkehrssicherheit möglich wären, da in dieser Sammelstraße Tempo 50 gilt. Mobilitätsschöffe François Bausch sagte, diese Frage werde im Umfeld von Schulen immer analysiert. Fabiana Bartolozzi (Déi Gréng) setzte sich für eine Öffnung weiterer Straßen, darunter die Rue Glesener, für Radfahrer in Gegenrichtung ein.

Anpassungen werden am Radweg von Hollerich zur Rue de Strasbourg durchgeführt, wo es im vergangenen November zu einem tödlichen Unfall gekommen war. An der Place de l'Etoile wird demnächst ein Radweg über den Bürgersteig geführt – keine sehr elegante Lösung, wie Claude Radoux (DP) bemerkte, aber eine sichere, wie François Bausch hervorhob.

Marc Angel erhielt gestern von Paul Helminger die Antworten auf zwei schriftliche Fragen: Der Winterdienst sei im Dezember 2010 nicht auf die außergewöhnlichen Schneefälle vorbereitet gewesen; die Stadt sei dabei, die nötigen Schlussfolgerungen zu ziehen.

Was den möglichen Umzug des „Atelier“ in den ehemaligen Schlachthof betrifft, sagte Paul Helminger, dass die Idee nur dann umgesetzt werde, wenn sichergestellt sei, dass es keine Lärmbelästigungen für Anrainer gibt.

François Bausch bestätigte Ben Fayot, dass JCDecaux im Jahr 2010 Schwierigkeiten bei der Abrechnung von „Vel'Oh“-Abonnements hatte; die Firma habe versichert, dass die Probleme größtenteils behoben seien.

(Text: raz, Fotos: GJ, GH, VdL)