CSV : Un centre attractif pour Junglinster

(Texte du "Op de Punkt" traduit en français.)

Chères concitoyennes, chers concitoyens,

Depuis des années les politiciens de tous les partis de notre commune déclarent que le réaménagement du centre de Junglinster représente une des priorités pour les années à venir. Et ce projet ambitieux porte le nom prétentieux et prometteur : « Jong-Mëtt-Lënster » ! Mais nous sommes sûrs que pour l’instant bien des habitants de notre commune n’ont aucune idée des projets qui y seront réalisés à court et à moyen terme. Cependant depuis des années les préparatifs pour ce plus grand projet de l’actuelle période de mandat des élus locaux vont bon train, nous ne dirions pas « à huis clos », mais notamment dans les bureaux des ingénieurs, des architectes, de notre service technique, du collège échevinal et au sein des groupes politiques.
Nous essayerons de vous présenter dans cet article brièvement les différentes phases du projet, réalisées et prévues, et certains points du programme.
Déjà en 2008 un concours d’architectes fut organisé qui avait comme sujet « Pour une nouvelle urbanisation du centre de Junglinster ». Et c’est le bureau d’architectes WW+ qui a remporté le premier prix de ce concours.
Tout de suite les travaux concrets ont débuté, car il y a du pain sur la planche ! Avant tout progrès en cause, il fallait modifier le plan d’aménagement général, car le terrain se trouvait dans une « Zone destinée au sport et de parking ». Il fallait donc créer la possibilité de construire des habitations (maisons plurifamiliales, constructions résidentielles, maisons individuelles en bande continue), des bureaux, des magasins, maisons pour services publics. Une plus grande offre concernant les marchandises et les services au centre de la localité qui seront à la portée de tout le monde améliorera et facilitera sans aucun doute l’accessibilité aux habitants.
Un remembrement du terrain était indispensable, étant donné que les parcelles concernées appartiennent pour 77,29 % à la commune et pour 22,71 % à l’Etat. L’Etat a chargé la Société Nationale des Habitations à Bon Marché (SNHBM) de construire sur sa propriété des habitations à prix modéré.
Ensemble avec l’Administration de la Gestion de l’Eau il fut décidé de procéder à une réouverture et une renaturisation de l’Ernz Noire ainsi qu’à un réaménagement et une protection des rives notamment le long de l’ancien terrain de football. Par la réouverture et l’intégration de la rivière dans une nouvelle zone de verdure, les fonctions écologique et sociale de l’Ernz seront rétablies sur une longueur de plus d’un kilomètre. Par ces mesures l’Ernz pourra non seulement contribuer à une amélioration des fonctions climatiques et écologiques, mais aussi des qualités de séjour et de vie.
Des travaux d’assainissement d’envergure et coûteux à l’ancien terrain industriel (Clement) commenceront sous peu et seront exécutés selon les règles de l’art.
Une vingtaine d’arbres d’une valeur certaine seront préservés et plantés à d’autres lieux de la commune.
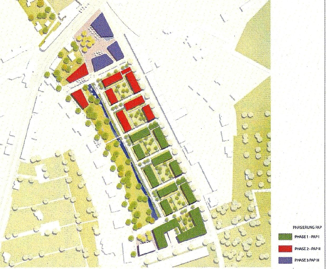
Selon le plan directeur du terrain trois phases d’exécution sont prévues, qui toutes les trois ont été ou seront définies par un plan d’aménagement particulier (PAP) dont le troisième sera voté par le conseil communal après les vacances d’été.
Des études concernant la circulation (privée et publique) ont été élaborées et seront prises en compte lors de l’exécution des plans.
Dans les prochains mois des travaux concrets seront réalisés sur le terrain ainsi qu’aux alentours : Déplacement des arbres, assainissement du terrain industriel, nouvelle canalisation dans la « Rue Hiel », assainissement du collecteur pour eaux usées au carrefour près de l’ancienne mairie, première phase des travaux de construction (construction d’appartements adaptés aux besoins spécifiques des seniors et des handicapés).
Le CSV vous informera au fur et à mesure que les travaux avanceront sur les différentes phases pour que tous les habitants de notre commune puissent se faire une idée concrète de la « Jong-Mëtt-Lënster » et se rendre compte que ce projet ambitieux et durable aura sans aucun doute un impact positif pour toute notre commune, et cela par le seul fait que nous aurons enfin un centre attractif pour la localité et toute la commune de Junglinster.

Francine Colling-Kahn
Bourgmestre

Gilles Dimmer
Conseiller communal