Construire avec du bois FSC.

Le bois est la seule ressource naturelle totalement renouvelable, il est produit dans les usines les plus écologiques qui soient, à savoir les forêts du monde.
Autant de bonnes raisons d'exploiter raisonnablement les forêts, dans le respect des hommes, de la nature mais aussi de l'économie.
C'est le principe même à la base du FSC, le label FSC apposé sur les produits du bois garantit formellement que ceux-ci proviennent bel et bien de forêts gérées durablement, qu'ils ont été suivis tout au long du processus de commercialisation et que leur exploitation s'est effectuée dans le respect des intérêts sociaux, écologiques et économiques.
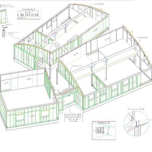
La crèche de Hobscheid conçue par l'architecte Thierry Noben a été construite en bois labelisé FSC.